愛と幸せの暮らしに

築62年、思い出の詰まった家をスケルトンリフォーム
築62年、思い出の詰まった家をスケルトンリフォーム

玄関・茶の間・仏間だったスペースを一つにしてLDKとして広々空間にしました。リビングドアをはじめリビングから繋がる洗面所・トイレのドアをハイドアにして空間を演出しました。冬場の寒さ対策として床暖房を採用しました。

独立キッチンから対面キッチンにして家事動線を短縮しました。また食器棚・家電収納を背面に設置して使い勝手を良くしました。

客間とする和室は和洋折衷をテーマとし、琉球畳を使用・奥行き感を出すため縦スリットの壁を設置して雰囲気を出しました。また床の間は石風のタイルを使用し質感を出しました。

寝室にはたっぷり収納を設置しました。冬場対策として床暖房を設置しました。

改修前は寒くて浴槽も狭い浴室でしたが、換気乾燥暖房機付きで浴槽も足を延ばせるゆったりユニットバスにしました。

トイレは掃除のし易いフチレスのトイレを採用して以前より掃除が楽になりました。

以前は洗面室がなく使い勝手が悪かったそうですが、2帖のゆったりスペースの洗面室を新設しました。

改修前の2帖の土間玄関から位置を変更して3帖の玄関&ホールで独立性を持たせました。また収納も大幅に改善しました。

総2階部分は太陽光により表面の陰影が多彩に変化する、さざなみのような曲線デザインが魅力のサイディングを採用し、平屋部分には木目の繊細なラインとナチュラルな風合いを表現したサイディングを採用しました。

駐車場設置・玄関前は縦スリットの目隠しを設置しました。

東京都足立区K様の事例紹介

築62年が経ち老朽化の進んだご自宅。はじめK様は建替えにするべきかリフォームにするべきか悩まれご相談にいらっしゃいました。「沢山思い出の詰まった愛着のある我が家」であるとの想いからK様は建て替えではなく、リフォームをご選択されました。
築年数も古く増築を重ねられておりましたので、お家をスケルトン状態まで解体し隅々までチェックをして不具合を解消、お住まいを一新しました。

リフォームのきっかけ
  • 老朽化が進んでいた
リフォーム箇所
リビング
キッチン
風呂
洗面
トイレ
和室
洋室
玄関・ドア
収納・押入
階段
外壁・屋根
外構・エクステリア
費用
2,126万円
種別
一戸建て
築年数
62年
間取り
5DK→3LDK
工事面積
89.7㎡
工期
100日間
所在地
東京都
ご家族構成
ご本人
Before

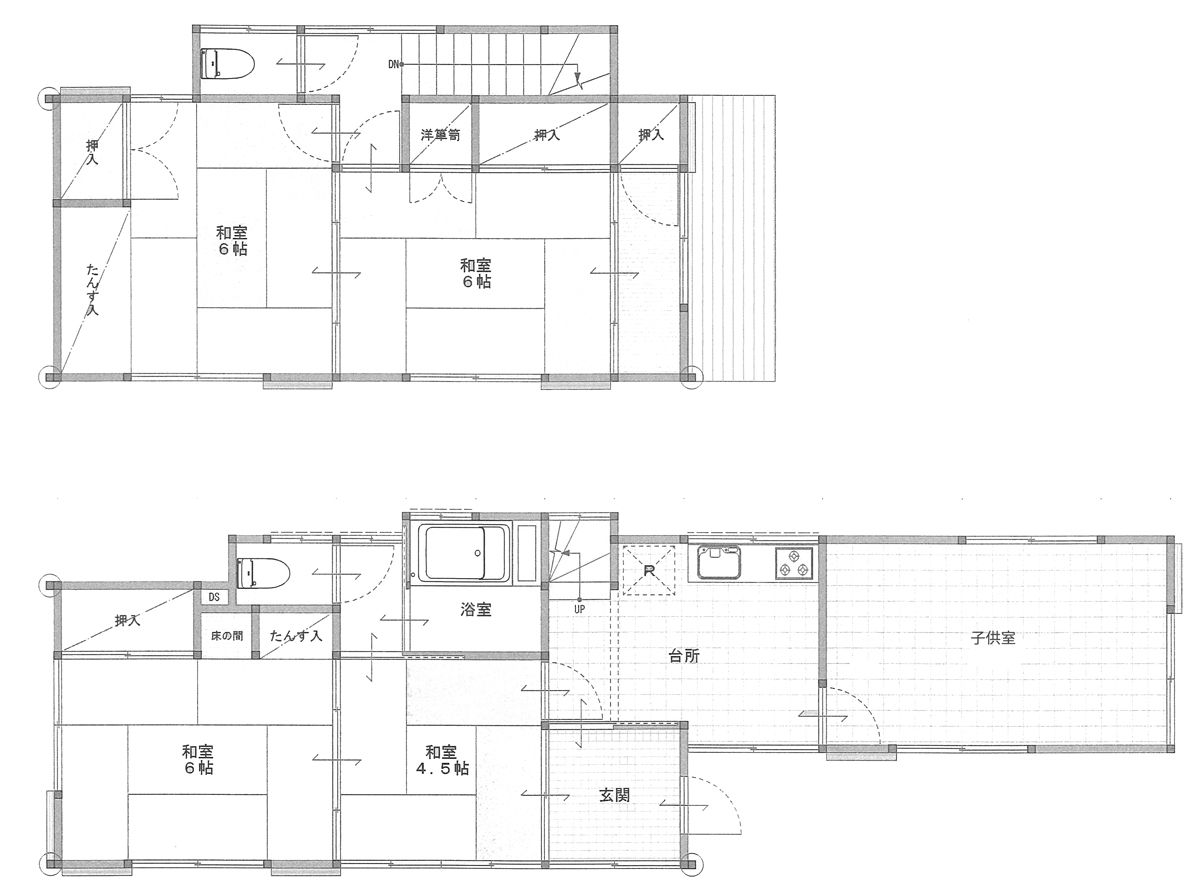
和室4室を含む5DKの間取り

After

部屋数を減らしてゆったりとした造りの3LDKに。キッチン、浴室は位置を大きく移動させるとともに、1階の和室2部屋をつなげてリビングダイニングに変更しました。

担当者のコメント
築62年、増築を重ねた思い出の家を大変身!

築62年の増築を重ねた思い出の我が家をスケルトン状態まで解体し、住まいの隅々までチェックした上で、不具合を解消し構造の性能の向上及び断熱性能の向上等の施工を施しました。生活動線的には1階で生活が出来るよう設計し、2階には趣味の部屋と客間を設計しました。

他の戸建ての
リフォームを見る
リフォームコラム

住まいのこと、リフォームのことをもっと知ってほしいという想いで発信するリフォームコラム。
最新のリフォームトピックスやリフォームのノウハウ、
実際のリフォームで採用された素敵なアイディアなど、情報満載でお届けします。
皆さまの快適な住まいづくりのヒントになれば幸いです。

キッチンは毎日少なくはない時間作業をすることになる場所だから使いやすさにはこだわりたいもの。それでは使いやすいキッチンにするためにはどんなことに気を付けてリフォームするとよいでしょうか。

2025年4月に建築基準法が改正されます。 「家を建てる時の話でしょ?」と思うかもしれませんが、リフォームにも関係している部分があり、注意が必要です。

近年増加傾向にある住宅への侵入窃盗。「我が家は大丈夫だろうか」と不安を感じている方も多いのではないでしょうか。リフォームでできるお家の防犯対策はどんなものがあるでしょう。安心して暮らせる住まいづくりについて一緒に考えてみましょう。

今、内窓のリフォームを検討する方が増えています。ここ数年断熱窓への改修に対する補助金も充実しており、断熱窓についての関心が高まっています。

築62年、思い出の詰まった家をスケルトンリフォーム