愛と幸せの暮らしに

臨海タワーマンションにふさわしい上質感を住まいに纏う
臨海タワーマンションにふさわしい上質感を住まいに纏う

約28帖の広々としたリビングはお住まいのグレードにふさわしい上質感を意識して内装をしつらえました。床にはシックな色味のフローリング材を施工、落ち着きのある高級感を演出しています。大きな窓からのダイナミックな眺望を楽しめるのが醍醐味のお部屋ですので、高層マンション特有のマリオンカーテンウォールの部分は電動ロールスクリーンを設置し、一斉の開閉や部分開閉ができるように構築しました。また、窓下部分にはペットのオウムの鳥かごを置く場所としてカウンターと下部に収納棚を造作し、利便性を高めました。

リビングのビルトインタイプのエアコンも20年以上使用されていたため交換。環境に配慮した機器に更新しました。

壁の一面には空間映えがするデザイン性の高いエコカラットタイルを張り、TVボードは宙に浮いたフロートタイプに加工しました。

シックなグレーで統一された美しいキッチンはPanasonicの上位シリーズである”L-CLASS”。シンクとコンロをセパレートして2列に配するII型のレイアウトを採用しました。壁の並びには冷蔵庫収納及びカップボード家電棚も一連に設置しています。お色は奥様のこだわりで、カウンターに御影石柄のブラックカラー、扉にはダークグレーを選択し、高級感のあるお洒落なキッチンになりました。配管の問題もありましたが、勾配を持たせつつしっかり施工できました。

ダイニング部分にはライティングレールを設置。ペンダントライトがキッチンの雰囲気ともマッチし、お部屋全体がシックに納まりました。

既存のツインタイプの洗面台はそのままに、壁や床材の貼替を行いました。洗面脱衣室は湿気の籠りやすい場所ですので、壁には吸放湿効果があり、空間の湿度をコントロールしてくれる機能性クロスを使用しました。

トイレの位置は変えず、ウォシュレット部分を交換しました。また、壁には消臭効果があるクロスを使用、床はストーンタイル調のクッションフロアで仕上げています。

3部屋ある洋室は壁や天井のクロスのは貼替を行い、窓にロールスクリーンやカーテンを設置しました。お部屋の壁には一部アクセントクロスを使用。奥様の個室は、一面のみペールグリーンのアクセントクロスを貼り、明るい個室を演出しました。

東京都中央区Y様の事例紹介

東京湾臨海エリアに建つ高層マンションを中古購入されてのリフォームです。現地調査で伺った際はキッチン部分が独立タイプで暗く、狭い印象でした。そこで、3LDKの間取りの基本は変更しないながらもキッチンのレイアウトを大幅に変更したプランをご提案。メインとなったLDK以外は洗面台やバスルームといった設備やドアなどの建具は既存の状態を活用し、クロスの変更など部分的なリフォーム工事を行い、Y様がご要望された「高級感」を叶えました。グレードアップされたリビングから望む都会の眺望が暮らしに華を添えてくれます。

リフォームのきっかけ
  • 中古物件購入
リフォーム箇所
リビング
キッチン
洗面
トイレ
洋室
玄関・ドア
収納・押入
費用
1700万円
種別
マンション
築年数
14年
間取り
3LDK
工事面積
126.05㎡
工期
40日間
所在地
東京都
Before
After

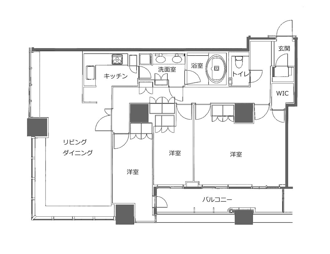
洋室が3部屋ある3LDKの間取り。基本は間取り変更しないプランで、キッチン部分のみ、独立型だったものをリビングダイニングと一体化させ開放感のある空間をご提案しました。

担当者のコメント
東京ベイ臨海高層型高級タワーマンション仕様

今回の工事では、基本残しの工事かつ高層マンションという難易度の高い工事でした。また、世界的にも電子部品の供給不足が続いており、床暖房及び電気給湯器もほぼ絶望的な納品状況。かつ、湾岸エリアのマンションだったことから、外部に設置する給湯器のヒートポンプユニットは耐塩害仕様で対応したため、運よく1台のみ手配ができてご入居までに施工が完了できたのは幸いでした。
今回のリフォームのイメージとしては「高級感」を意識しており、床についてはセラミック配合床「GROCK」を施工し、高級感がある仕様に変更しました。建具はそのまま活用したのですが、建具の色柄とほぼ同系統のものを採用したことで違和感のない仕上がりにできたのは良かったと感じております。
工事中にリビングの窓から見た東京タワーの夜景が非常に印象に残っています。ロケーションも楽しめる良いリビングに改造できました。

Before After
Before
After
Before
After
Before
After
他のマンションの
リフォームを見る
リフォームコラム

住まいのこと、リフォームのことをもっと知ってほしいという想いで発信するリフォームコラム。
最新のリフォームトピックスやリフォームのノウハウ、
実際のリフォームで採用された素敵なアイディアなど、情報満載でお届けします。
皆さまの快適な住まいづくりのヒントになれば幸いです。

キッチンは毎日少なくはない時間作業をすることになる場所だから使いやすさにはこだわりたいもの。それでは使いやすいキッチンにするためにはどんなことに気を付けてリフォームするとよいでしょうか。

2025年4月に建築基準法が改正されます。 「家を建てる時の話でしょ?」と思うかもしれませんが、リフォームにも関係している部分があり、注意が必要です。

近年増加傾向にある住宅への侵入窃盗。「我が家は大丈夫だろうか」と不安を感じている方も多いのではないでしょうか。リフォームでできるお家の防犯対策はどんなものがあるでしょう。安心して暮らせる住まいづくりについて一緒に考えてみましょう。

今、内窓のリフォームを検討する方が増えています。ここ数年断熱窓への改修に対する補助金も充実しており、断熱窓についての関心が高まっています。

臨海タワーマンションにふさわしい上質感を住まいに纏う