愛と幸せの暮らしに

これからは「好き!」に囲まれて
これからは「好き!」に囲まれて

元は和室だった2部屋をひとつなぎの洋室にし、広々LDKに。
隣の洋室との間仕切りも完全に仕切るのではなく、半透明の建具を採用しました。閉め切ってもお互いの気配が感じられます。
素材感のあるアクセントクロスで、好きなモダンアートが映えるように。

突き当りは元々押入。
洋室に合わせて大容量のクローゼットにし、ロールスクリーンで仕切りました。普段は開け放しでも、隠したいときにはさっと隠せます。
お茶目な柄は、なんとお客様の手描き!北欧の人気デザインをモチーフに自ら描き上げられたのだそう。眺めているだけで元気が出ます。

リビング一角のワークスペース。
あらかじめどこに何を置くか決めた上で、幅、奥行き、棚の高さと入念に打合せをしました。椅子はもちろん2脚!
”ワーク”スペースといいながら、なんだかお酒が見えますが…

各部屋の間仕切りを取り払い、過ごす時間の長いLDKを広く明るく。
この写真の中で今回工事をしたのはワークスペースだけです。リフォームする箇所、しない箇所をはっきり分けて計画をしたので、その境目が自然になるように苦労しました。

玄関にも大型の収納を設けました。
また、玄関扉には風通しのために玄関用のルーバー式網戸を設置。施錠もできるので、安心して使用することができます。

洋室の一角に、新たにクローゼットを設けました。

バスルームは一新。ベージュの石目調のアクセントパネルを採用し、あたたかく上品な空間に仕上がりました。限られた広さのバスルームでも充分にくつろげるよう設計された形状の浴槽が癒しのバスタイムを演出します。

兵庫県神戸市東灘区M様の事例紹介

M様はお2人ともに事業から離れ、ゆっくり過ごされるために新しくお住まいをお探しでしたので、今回物件探しからお手伝いをさせていただきました。
フルリフォームではなくリビングや収納、バスルームなどの部分リフォームでしたが、その分、既存との取り合いに苦労しました。
M様からの主なご要望は、広々としたリビングと2人のワークスペース。2部屋あった和室を洋室に変更し、そのうち1部屋をリビングに取り込むことでリビングを拡張しました。そのリビングの一角にはお2人が並んで作業できるワークスペースを設置。
アクセントクロスなど内装にもこだわり、M様が「好き!」に囲まれた暮らしを堪能できる空間となりました。

リフォームのきっかけ
  • ご退職後の住まいとして物件を購入
リフォーム箇所
リビング
風呂
和室
洋室
玄関・ドア
収納・押入
費用
280万円
種別
マンション
築年数
33年
間取り
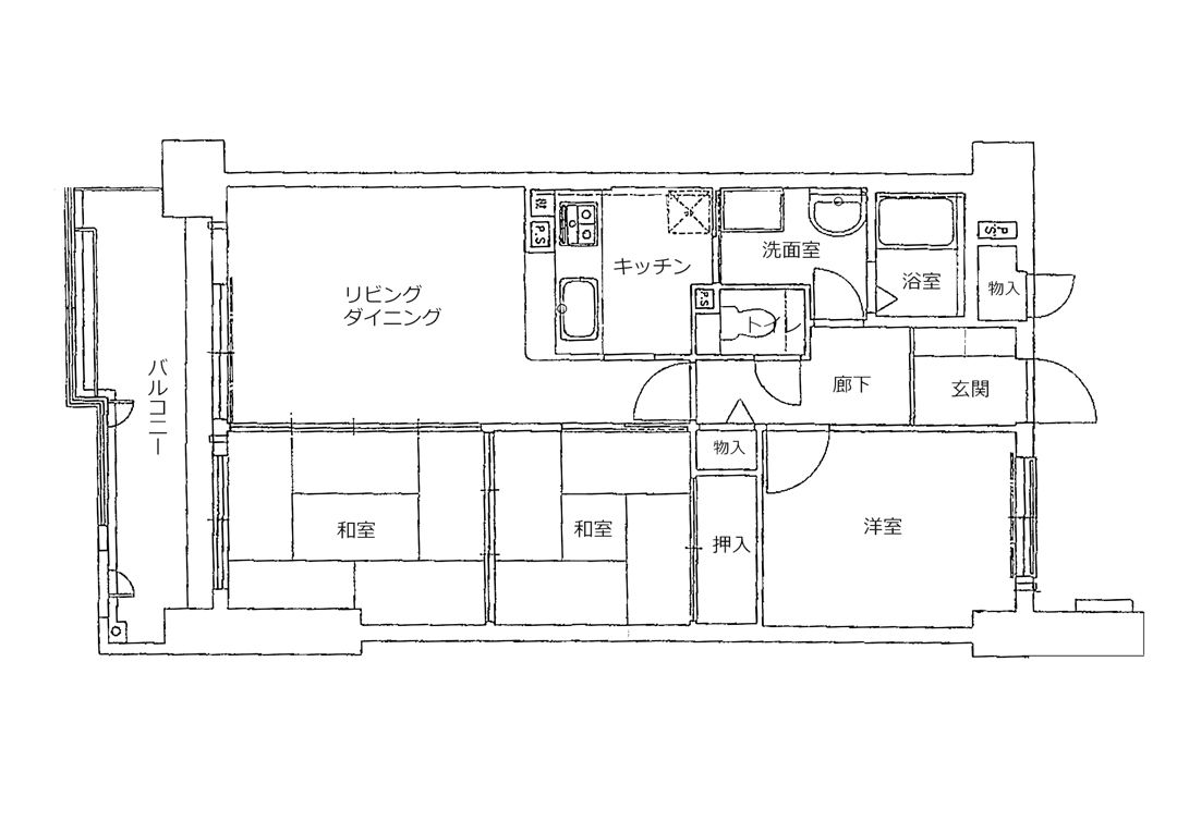
3LDK→2LDK
工事面積
63.76㎡
工期
20日間
所在地
兵庫県
ご家族構成
大人2人
Before
After
お客様の感想

使いやすさにこだわりリフォームをしました。
リフォームのなかでは特にアクセントクロスの柄選びが楽しかったです。なかなか決まらず、サンプルの取り寄せを数種類お願いしましたが、担当の松尾さんが依頼したものと違うサンプルも取り寄せており、パッと見の印象で最終的にそのクロスに決めました。思い切りがいったが、やってよかったと思います。
夏場は玄関網戸も便利でしたし、毎日過ごしやすく快適です。

担当の松尾さんは工事中も日々進捗状況をメールで送ってくださり、遠方だがストレスもなく安心してリフォームができました。トラブル時の対応も早く、何時にメールをしても速やかに返信をいただけました。
いつも物腰が柔らかく、知識と経験が豊富で、良い担当にご縁がありました。

担当者のコメント
 

仕事でずっと苦楽を共にされてきたお2人。
事業の立ち上げ時から関わり、私などはとても想像できないほど苦労をされてきたことかと思います。
ただ、そんなそぶりは微塵も感じさせずいつも明るく前向きなお2人で、打合せの度にこちらが逆に幸せパワーをいただけたほどでした。
お家のどこにいてもお互いの空気感を感じられるお住まいで、これからも仲良く、ほのぼのと。お過ごしいただけたらと思います。

リフォーム神戸 松尾 孝行
Before After
Before
After
Before
After
Before
After
Before
After
Before
After
Before
After
他のマンションの
リフォームを見る
リフォームコラム

住まいのこと、リフォームのことをもっと知ってほしいという想いで発信するリフォームコラム。
最新のリフォームトピックスやリフォームのノウハウ、
実際のリフォームで採用された素敵なアイディアなど、情報満載でお届けします。
皆さまの快適な住まいづくりのヒントになれば幸いです。

キッチンは毎日少なくはない時間作業をすることになる場所だから使いやすさにはこだわりたいもの。それでは使いやすいキッチンにするためにはどんなことに気を付けてリフォームするとよいでしょうか。

2025年4月に建築基準法が改正されます。 「家を建てる時の話でしょ?」と思うかもしれませんが、リフォームにも関係している部分があり、注意が必要です。

近年増加傾向にある住宅への侵入窃盗。「我が家は大丈夫だろうか」と不安を感じている方も多いのではないでしょうか。リフォームでできるお家の防犯対策はどんなものがあるでしょう。安心して暮らせる住まいづくりについて一緒に考えてみましょう。

今、内窓のリフォームを検討する方が増えています。ここ数年断熱窓への改修に対する補助金も充実しており、断熱窓についての関心が高まっています。

これからは「好き!」に囲まれて