愛と幸せの暮らしに

想いを形に。こだわりの空間造り
想いを形に。こだわりの空間造り

目の覚めるような鮮やかなシステムキッチン。機器類の機能やキャビネットの割付け、扉柄や、ダイニングキッチン側とキッチン側のサイドパネルの仕上がり具合など、お施主様と一緒に細部まで徹底的にこだわりました!

以前の和室の敷居段差を解消し、リビングから一続きの段差のない空間へ。6帖の限られた空間だったので、クローゼット扉や間仕切り壁を天井までの高さにし、タテ空間に視覚的な広がりを出しました。

各メーカーのタンクレストイレをご提案させていただいた結果、やはり今までのご使用感から選んでいただいたおトイレです。手摺も新たに設置し、内装も一新し、華やかな空間へ変わりました。

お施主様のこだわりを実現してくれたシックで落ち着いた洗面化粧台。花柄のクロスが統一感をさらに演出しています。間口いっぱいの洗面カウンター、1面鏡+2面収納鏡。2面収納鏡は合わせ鏡になっています。

既存の鉄製の扉にシートを貼り、腰壁と合わせた木目調の扉へリフォームしました。ほんの少しの事ですが、統一感が生まれます。

兵庫県神戸市中央区在住S様の事例紹介

長年暮らしてこられたご自宅のリフォーム。これからの事を考え、リフォームを決意されました。和室をリビングダイニングへと続く一続きの洋室とし、3枚引込み戸で、空間を自由に仕切る事が出来ます。今までの使い勝手を生かしながらも、キッチン、洗面、トイレや建具など機能面を向上させる事で、生活の質改善と、これからのご使用感の向上に努めました。また、視覚的なデザインはお洒落なお施主様にぴったりの空間になりました。

リフォームのきっかけ
  • キッチンを新しくしたい
  • 和室を洋室にしたい
  • 内装リフォームをしたい
リフォーム箇所
リビング
キッチン
洗面
トイレ
洋室
玄関・ドア
費用
560万円
種別
マンション
築年数
20年
間取り
3LDK
工期
30日間
所在地
兵庫県
ご家族構成
ご夫婦
Before
After

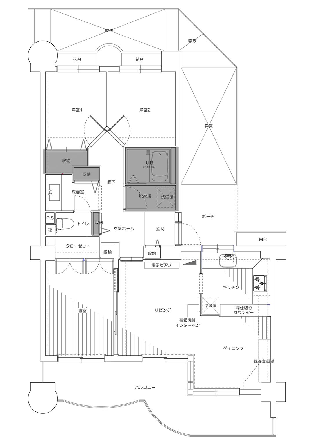
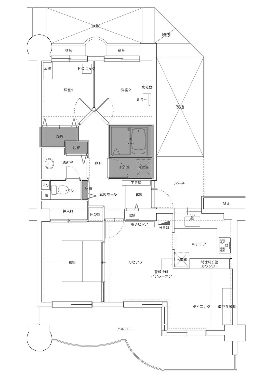
3LDKの間取り。配置は変えずに和室を洋室に変更しました。

担当者のコメント
想いを形に。こだわりの空間造り

最初は現状キッチンをL型から対面キッチンへのリフォームを希望されておられました。その後、マンション側管理規約や、今までの使い勝手、動線上の問題などから何度も何度もキッチンプランを練り直しました。結果、現状通りのL型プランに決めていただきました。ここで、重要になるのがL型コーナー部分にある柱でした。各メーカーがコーナー部分切り欠き施工が難しいと回答する中、Panasonic L-Classがコーナー部分切り欠きを実現してくれ、かつ、その他のお客様のこだわりにも対応可能でした。機能面、デザイン共に、お施主様こだわり一杯のシステムキッチンとなりました。

リフォーム神戸 齋藤 里奈
Before After
Before
After
Before
After
Before
After
他のマンションの
リフォームを見る
リフォームコラム

住まいのこと、リフォームのことをもっと知ってほしいという想いで発信するリフォームコラム。
最新のリフォームトピックスやリフォームのノウハウ、
実際のリフォームで採用された素敵なアイディアなど、情報満載でお届けします。
皆さまの快適な住まいづくりのヒントになれば幸いです。

キッチンは毎日少なくはない時間作業をすることになる場所だから使いやすさにはこだわりたいもの。それでは使いやすいキッチンにするためにはどんなことに気を付けてリフォームするとよいでしょうか。

2025年4月に建築基準法が改正されます。 「家を建てる時の話でしょ?」と思うかもしれませんが、リフォームにも関係している部分があり、注意が必要です。

近年増加傾向にある住宅への侵入窃盗。「我が家は大丈夫だろうか」と不安を感じている方も多いのではないでしょうか。リフォームでできるお家の防犯対策はどんなものがあるでしょう。安心して暮らせる住まいづくりについて一緒に考えてみましょう。

今、内窓のリフォームを検討する方が増えています。ここ数年断熱窓への改修に対する補助金も充実しており、断熱窓についての関心が高まっています。

想いを形に。こだわりの空間造り