愛と幸せの暮らしに

デザイン重視ながらもシンプルで機能的な造り。 壁・天井の白、床の明るい茶色で清潔感と明るさを。
デザイン重視ながらもシンプルで機能的な造り。
壁・天井の白、床の明るい茶色で清潔感と明るさを。

部屋の一体感を出すために、天井高の目透かし壁と扉、同じ素材のオリジナル制作のチェスト、床にはナラの無垢フローリングを採用。すっきりとした中にも暖かみのある仕上りにしました。

部屋全体のデザインに合わせて、シャープなラインが美しい洗面台を設置。ドアを開閉しても妨げにならないよう、間取りに合わせて角を斜めにカットし、視覚的にも広がりを生み出しています。

キッチンは施主様のご要望に合わせて設計されたオリジナル。動きやすいL字型を採用し、コンパクトながらも機能性にも配慮しているのがポイント。

寝室の横には、約6畳もの広さのウォークインクロゼットを新設。整理整頓しやすいよう、大きめの棚やハンガーパイプを取り付け、手軽に片付けられるように工夫しています。

東京都中野区N様の事例紹介

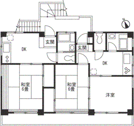
3階建てマンションオーナーであるN様。3階の賃貸している2部屋をご長男の住まいにとリフォームを決意。デザイン性と機能性を両立させた、シンプルモダンな1LDKを作り上げました。さらに大き目のウォークインクローゼットも新設、整理整頓がしやすくなりました。

リフォームのきっかけ
  • 12階で家族が生活をし、3階は賃貸出し、その2部屋の賃貸契約期間が終了した。
  • 築37年で老朽化も目立ち始め、3階を長男のための住まいにリフォームを。
  • ご近所のお宅がリフォームをした時、挨拶に見えた営業さんの印象が良かった。
リフォーム箇所
リビング
キッチン
洗面
外構・エクステリア
費用
1,155万円
種別
マンション
築年数
37年
間取り
2世帯→1LDK
工事面積
60.0m² (18.2坪)
工期
60日間
所在地
東京都
Before
After

2部屋(1DK+2DK)の重複しているトイレ・バス・キッチンを取り除き、さらに2DK部分のダイニングキッチンに接している部屋の壁を取り払い、広々とした1LDKを実現しました。

担当者のコメント
デザイン性と使いやすさを兼ね備えた1LDKに仕上げました。

N様との出会いは、ご近所でのリフォーム工事に伴う近隣挨拶でした。実際にお住まいになる息子さんが大変多忙の為、お打合せは、ご両親が息子さんの要望を聴きながら行うという形で進めさせていただきました。今回のリフォームのコンセプトは「シンプルで機能的な部屋」。大幅な間取りの変更を伴なう工事でしたが、デザイン性と機能性を兼ね備えた広々とした1LDKに仕上げることができました。

リフォーム東京 藤井 保勝
Before After
Before

キッチン

After

他のマンションの
リフォームを見る
リフォームコラム

住まいのこと、リフォームのことをもっと知ってほしいという想いで発信するリフォームコラム。
最新のリフォームトピックスやリフォームのノウハウ、
実際のリフォームで採用された素敵なアイディアなど、情報満載でお届けします。
皆さまの快適な住まいづくりのヒントになれば幸いです。

キッチンは毎日少なくはない時間作業をすることになる場所だから使いやすさにはこだわりたいもの。それでは使いやすいキッチンにするためにはどんなことに気を付けてリフォームするとよいでしょうか。

2025年4月に建築基準法が改正されます。 「家を建てる時の話でしょ?」と思うかもしれませんが、リフォームにも関係している部分があり、注意が必要です。

近年増加傾向にある住宅への侵入窃盗。「我が家は大丈夫だろうか」と不安を感じている方も多いのではないでしょうか。リフォームでできるお家の防犯対策はどんなものがあるでしょう。安心して暮らせる住まいづくりについて一緒に考えてみましょう。

今、内窓のリフォームを検討する方が増えています。ここ数年断熱窓への改修に対する補助金も充実しており、断熱窓についての関心が高まっています。

デザイン重視ながらもシンプルで機能的な造り。 壁・天井の白、床の明るい茶色で清潔感と明るさを。