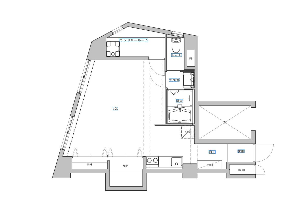
3LDKの間取りを広々としたワンルームに変更しました。
住まいのこと、リフォームのことをもっと知ってほしいという想いで発信するリフォームコラム。
最新のリフォームトピックスやリフォームのノウハウ、
実際のリフォームで採用された素敵なアイディアなど、情報満載でお届けします。
皆さまの快適な住まいづくりのヒントになれば幸いです。
キッチンは毎日少なくはない時間作業をすることになる場所だから使いやすさにはこだわりたいもの。それでは使いやすいキッチンにするためにはどんなことに気を付けてリフォームするとよいでしょうか。
2025年4月に建築基準法が改正されます。 「家を建てる時の話でしょ?」と思うかもしれませんが、リフォームにも関係している部分があり、注意が必要です。
近年増加傾向にある住宅への侵入窃盗。「我が家は大丈夫だろうか」と不安を感じている方も多いのではないでしょうか。リフォームでできるお家の防犯対策はどんなものがあるでしょう。安心して暮らせる住まいづくりについて一緒に考えてみましょう。
今、内窓のリフォームを検討する方が増えています。ここ数年断熱窓への改修に対する補助金も充実しており、断熱窓についての関心が高まっています。
 
 
まずは配管の更新を優先的にプランを進めていきました。こちらを信頼して、ご提案内容もお任せしていただけたのは大変うれしく思います。お任せいただいた中でも一つ一つO様に確認をしながら工事を進めることができたので、順調にリフォームを進めることができました。