愛と幸せの暮らしに

用途に合わせたお部屋へ
用途に合わせたお部屋へ

廊下からリビングに入る扉は高さが低かったため、高さを2mの既製高さまで開口をし、新しくダイケンの建具を設置しました。採光もデザインも兼ね備えた商品です。

キッチンはL型からI型に変更。その為リビングに入ると、キッチンだけでなく、ゴミ箱や炊飯器などすべて丸見えになってしまうので、キッチン背面にカウンター収納を設置。リビングの扉を開けてもキッチンが丸見えにならず、スッキリした空間になりました。

既存の洋室は収納が全くなかった為、上部に吊戸棚を設置しました。

既存和室の部屋は洋室へ。押入れの襖も既存利用。壁紙を貼り、明るい可愛いお部屋に変化しました。

洋室にある作り付けの大きな本棚は、塗装をし直し再利用しました。

既存のユニットバスが1116サイズと小さかった為、今回一つ上のサイズのTOTOのWF1216サイズを設置しました。浴室乾燥機も新しく取付け、洗濯物も室内で干せます。

洗面化粧台は、TOTOリモデアを設置しました。浴室が少し大きくなりましたが、洗面化粧台の出っ張りも以前と変化なく使用が可能です。引出しタイプになり以前より収納力が増しました。

ウォシュレットは今回リモコンタイプにし、便器も節水のTOTOピュアレストEXを設置しました。暗い空間にあった既存のトイレから壁紙と床の貼替で、以前よりも明るくなりました。

既存の玄関収納はカウンタータイプの収納量が少ないタイプでサイズもあっていませんでした。玄関は広いので、そのメリットを活かし、ダイケンのトール型を設置。サイドにはフックを取付け帽子やコートなど引っ掛けることができ、ミラーも取付けたので、身だしなみが整えられます。収納の中は、傘をかけられる所がある為、外に傘が散乱する心配もありません。

東京都狛江市在住K様の事例紹介

間取りを変更せず各部屋の用途に合わせたリフォームを行いました。既存の作り付けの大きな本棚は塗装をかけ、再利用できるようにしました。既存の建具は交換、和室は洋室へ変更、各部屋の床材(フロアタイル)の上張りと壁紙の貼替を行い、部屋の雰囲気を変化させ、お施主様からも住みやすいお部屋になり、喜んで頂きました。

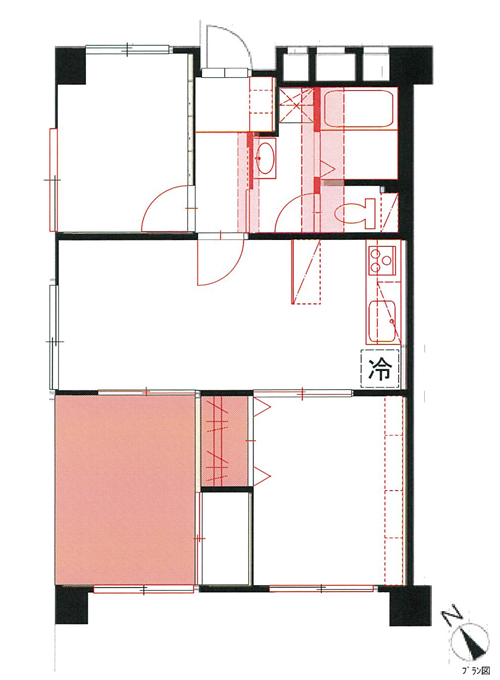
間取りは3DKの1F部分の角部屋です。角部屋の1Fということで、窓も多く、お庭も広い間取りです。

リフォームのきっかけ
  • お部屋に合った空間にしたい
  • 設備が古いので新しくしたい
リフォーム箇所
リビング
キッチン
風呂
洗面
トイレ
洋室
玄関・ドア
収納・押入
費用
513万円
種別
マンション
築年数
36年
間取り
3DK
工事面積
58.72㎡
工期
34日間
所在地
東京都
ご家族構成
ご夫婦+子ども1人
Before
After
担当者のコメント
壁紙材による空間変動

既存のお部屋では白色を基調としていましたが、変化のない昔懐かしいお部屋というイメージでした。その空間を壁紙材と床材のフロアータイルで各部屋個性を持った空間に変化しました。壁紙材は柄や色彩がある商品を選択することにより、同じ空間ではなくなってしまうマジックのような感覚になります。全ての壁や天井を色彩や柄がある商品を選択しないでも空間のイメージは変化します。用途に合わせた仕上がりまでの空間イメージをこれからも手伝いさせて下さい。

Before After
Before

リビング

After

Before

キッチン

After

Before

洋室

After

Before

和室から洋室へ

After

Before

本棚

After

Before

浴室

After

Before

洗面室

After

Before

トイレ

After

Before

玄関収納

After

他のマンションの
リフォームを見る
リフォームコラム

住まいのこと、リフォームのことをもっと知ってほしいという想いで発信するリフォームコラム。
最新のリフォームトピックスやリフォームのノウハウ、
実際のリフォームで採用された素敵なアイディアなど、情報満載でお届けします。
皆さまの快適な住まいづくりのヒントになれば幸いです。

キッチンは毎日少なくはない時間作業をすることになる場所だから使いやすさにはこだわりたいもの。それでは使いやすいキッチンにするためにはどんなことに気を付けてリフォームするとよいでしょうか。

2025年4月に建築基準法が改正されます。 「家を建てる時の話でしょ?」と思うかもしれませんが、リフォームにも関係している部分があり、注意が必要です。

近年増加傾向にある住宅への侵入窃盗。「我が家は大丈夫だろうか」と不安を感じている方も多いのではないでしょうか。リフォームでできるお家の防犯対策はどんなものがあるでしょう。安心して暮らせる住まいづくりについて一緒に考えてみましょう。

今、内窓のリフォームを検討する方が増えています。ここ数年断熱窓への改修に対する補助金も充実しており、断熱窓についての関心が高まっています。

用途に合わせたお部屋へ