愛と幸せの暮らしに

思いきって!フルリフォーム☆
思いきって!フルリフォーム☆

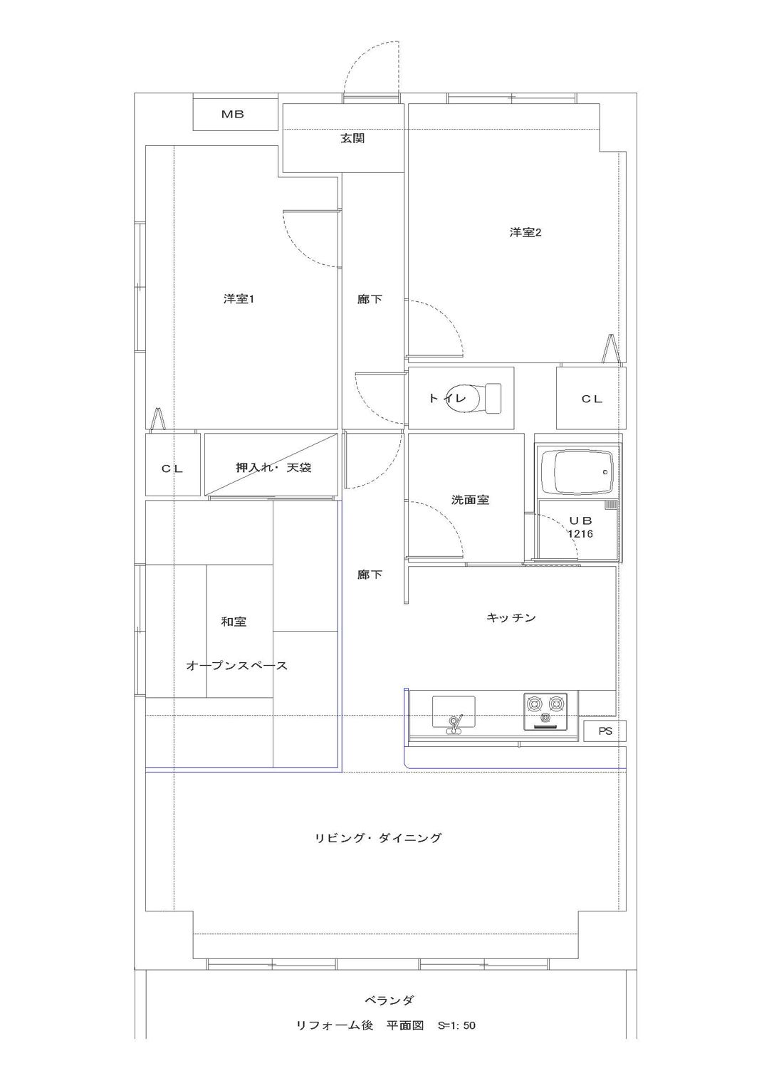
和室の間仕切り壁がリビングの広さを半減させていました。その間仕切り壁を取り払い、和室の広さは縮小せず、そのままの広さを確保しています。敷居が目に見えない境界線となり、ゆるやかに空間を区切り、和室スペースとして以前の面影を少し残しています。

キッチンスペースも以前より拡張し、LDを見渡せる空間に。キッチン前には約3mものカウンターを新設。大工さんに丁寧に施工していただきました。見事な水平ラインで、より一層広がりを感じます。

北側の寒く暗いイメージだったお部屋でしたが、新しいクロス、暖かみのある色目のカーペットにリフォームし、視覚的にやわらかな雰囲気となりました。角部屋だったので、窓から山の緑を借景に、より一層お部屋に暖かみが増したような気がします。

シックなイメージの浴室。設備機器も一新させ、洗面室からのつながりを大事にしています。

シンプルなリフォームですが、クロスや床、巾木が空間に色を添えてくれています。

シンプルな化粧台。すべてをシンプルにするのではなく、内装材で変化を出しました。

兵庫県神戸市北区在住K様の事例紹介

リフォーム概要
・大工工事(間取り変更、造作)
・設備工事(システムキッチン、ユニットバス、洗面、トイレ)
・内装工事(クロス、クッションフロア、カーペット)
・その他工事

リフォームのきっかけ
  • 間仕切りをなくし、開放感のある空間にしたい。
  • キッチンの吊戸を無くし、対面キッチンにしたい。
  • 設備機器を新しくしたい。
リフォーム箇所
リビング
キッチン
風呂
洗面
トイレ
和室
洋室
玄関・ドア
費用
342万円
種別
マンション
築年数
20年
間取り
3LDK
工事面積
80.5㎡
工期
30日間
所在地
兵庫県
ご家族構成
ご夫婦
Before
After

これまで壁で仕切られていた和室をオープンにしたことで、リビングの視界が広くなりゆとりを感じる空間となりました。

担当者のコメント
思いきって!フルリフォーム☆

「とにかく開放感!」を求めておられたお施主様。始めは、キッチン前の垂れ壁・袖壁の撤去がご希望でしたが、この際、和室の間仕切壁も取り払い、より開放的な空間にしたい!との思いが強くなり、思い切ってLDK+和室の大空間をご提案させていただきました。
想像以上の広がりと、リビング~ダイニング~キッチン~和室の一体感を十分に感じていただける事ができました。

リフォーム神戸 齋藤 里奈
Before After
Before
After
Before
After
Before
After
他のマンションの
リフォームを見る
リフォームコラム

住まいのこと、リフォームのことをもっと知ってほしいという想いで発信するリフォームコラム。
最新のリフォームトピックスやリフォームのノウハウ、
実際のリフォームで採用された素敵なアイディアなど、情報満載でお届けします。
皆さまの快適な住まいづくりのヒントになれば幸いです。

キッチンは毎日少なくはない時間作業をすることになる場所だから使いやすさにはこだわりたいもの。それでは使いやすいキッチンにするためにはどんなことに気を付けてリフォームするとよいでしょうか。

2025年4月に建築基準法が改正されます。 「家を建てる時の話でしょ?」と思うかもしれませんが、リフォームにも関係している部分があり、注意が必要です。

近年増加傾向にある住宅への侵入窃盗。「我が家は大丈夫だろうか」と不安を感じている方も多いのではないでしょうか。リフォームでできるお家の防犯対策はどんなものがあるでしょう。安心して暮らせる住まいづくりについて一緒に考えてみましょう。

今、内窓のリフォームを検討する方が増えています。ここ数年断熱窓への改修に対する補助金も充実しており、断熱窓についての関心が高まっています。

思いきって!フルリフォーム☆