愛と幸せの暮らしに

納戸をリフォームで二世帯化 空間をつなげて光や視界が抜ける家
納戸をリフォームで二世帯化
空間をつなげて光や視界が抜ける家
東京都T様(Y様・O様)の事例紹介

686万円

ご家族構成
大人2人
リフォーム箇所
リビング
キッチン
風呂
洗面
トイレ
和室
洋室
玄関・ドア
物置状態になっていた2階を娘さんが住むためにリフォーム

T様は以前にも朝日住宅リフォームにてリフォームのお手伝いをさせていただいたお客様。2年前にご自宅のリフォームがきっかけで出会って以降、賃貸用のお部屋などもお任せいただき、担当者のことは「もうお友達」と言うほど信頼関係ができている、いわばお得意様です。

そんなT様から今回ご依頼をいただいたのはご自宅の2階部分のリフォームでした。
「以前1階部分をリフォームした時にはこの2階には伯母が住んでいたんですが、その伯母が家を出てからは物置状態になっていたんです。歳をとってから片づけるのは大変なので片づけることにしたんですが、その後空き部屋にしておくのももったいないので使い道をどうしようかと迷っていたんです」

そこでT様が相談をしたのが娘のY様でした。Y様はお近くでパートナーと一緒に暮らしており、ちょうど2人で引越しを考えていたタイミングだったそうで、その2階部分を借りて住むことに。
「せっかく娘たちが住んでくれるなら、リフォームをして好みの内装にしてあげたいと思い、また朝日住宅リフォームさんにお願いをすることにしました」

今回のリフォームではお母様のT様がスポンサー兼プロデューサー。「これをやる」「ここを変更する」という大枠をお母様が決め、お部屋の住人となるY様とパートナーのO様が内装や設備など細かい仕様を選ぶことに。ご要望はお母様を通して担当者に伝えられる形でリフォームが進められました。

床で統一感とゾーニングを両立させる空間の妙

ご自宅はT様ご自身がオーナーをしているマンションの一室。1階と2階は室内の階段でつながっているものの、2階部分は普通のマンションのように外階段に通じた玄関もあり1階を通らずとも出入りすることができます。ただ、キッチンやお風呂はなく、生活するためには設備を新しく設置する必要がありました。

そこで、水回り部分をL字に集約し、そのエリアの床を他よりも10センチ上げて配管を整えキッチンや浴室などの設備を設置。床材を他の空間と揃えたため空間全体はまとまりながらも、段差の効果によってこちら側は水回りという空間分けが自然にできて良いといいます。

空間がオープンで見通しの良いのがこのお家の魅力のひとつ。玄関につながるドアを開けると、水回りからダイニング、和室にかけてワンルームのように開けた空間が広がっています。

今回のリフォームでは壁で仕切られていた和室を開放し、ダイニングとつなげることで、大きな窓からの光がお住まいの奥まで通るようになりました。
「最初の案では和室は大きく変更しないはずだったんですけど、それだとキッチンを置いた時に冷蔵庫を置く十分なスペースがなくて。そうしたら母が「全部壊していいよ」と言ってくれたので、壁を抜いて空間をつなげることができました」とY様。

「ダイニングと同じ床にすることもできるよ」とお母様から提案をされたそうですが、「私も彼も“ジベタリアン”なので畳は活かしたい」と畳コーナーを残すことに。

空間としての統一感を出すため、ダイニングの床に選んだグレーの色味に合わせて“銀鼠色”というモダンで柔らかい印象のグレーの畳を選びました。
「視界の抜けた感じと床の色味の連続した感じがすごく素敵だなと思います。統一感がありながらも材質の違いでゆるやかにゾーニングできているところも気に入っています」

DIYで手を加えて完成!無彩色のインダストリアル

お住まいはグレーや白を基調として木材のヴィンテージな味わいが光るインダストリアルなデザイン。

「彼がそういうテイストが好きなんです。蚤の市に行ってユーズド品を買って来たり、元から持っている家具も木目のものが多いので、それが馴染む空間にしたいなと思いました」とY様。

パートナーのO様も「2人でよく話していたのは「普通じゃない方がいいね」ということ。せっかく壁を抜いてもらっていろいろとやらせてもらえるのなら、よくある部屋ではなく、出来ればかっこいいお洒落な空間にしたいね、と考えて試行錯誤しました」

家の中心にあたるダイニングにはラフな風合いのある古材を並べた天板とブラックアイアンが無骨な雰囲気のカウンターテーブルが鎮座し、お洒落なカフェ空間そのものです。
実はこのカウンターテーブルは、娘のY様のお手製。DIYが得意で、お母様曰く「昔から「部屋を掃除しなさい!」と言うと模様替えを始めちゃう子だった」というY様は、今回の住み替えにあたり収納や家具のほとんどをご自身で手掛けました。

「普通の賃貸だとやりたくても自由にできなかったりするけど、母からは好きにしていいと言ってもらえたので、なるべく自分でいろいろとやってみたくて。今までもDIYはしていましたが、広い空間がないと大きなものを作ったり、ペンキを塗ったりはできなかったんです。この機会でずっとやりたいと思っていた大物にも挑戦できました」とY様。
そのため、朝日住宅リフォームでは、Y様が思う存分家具づくりを楽しめるように壁に下地を入れて補強を施し、Y様が自らビスを打ち棚を設置できるようにしました。

人が集まる家だから、音にも配慮したい

お家のテーマの一つが「人が来ても平気な家」。
Y様とO様の元には「お茶をしにくる人」が多く、一度に大人数が集まることもあるのだそう。確かにそう言われるとダイニングのカウンターテーブルも畳スペースも人が集いたくなる趣があり、来客の多いこのお家にはぴったり。

「だから最初はすごく広い玄関をつくろうと考えていました。ただ、構造上の問題でお風呂の位置を変更したため、今回は諦めることになりました」

人が大勢集まるとなると気になるのは音。そのため、ご両親が暮らす1階に音が響かないように防音対策は必須でした。お母様のT様としても「お互いが気を遣わず気持ち良く暮らすためにも対策は必要」とお考えでした。

そこで、1階と2階をつなぐ階段を遮音パネルで囲い、防音性のある引き戸を設置。吹き抜け状態だったオープンな階段を塞ぐことで反響音が大幅に軽減されたといいます。

「階段の近くまでくれば多少「帰って来たんだな」などわかるけど、普段リビングにいる時は2階の音は全然気にならないです」と1階で暮らすT様もその効果を感じているようです。

親子3代住み継ぐ家

物づくりがお好きなY様は工事中には何度も現場に足を運び、お住まいが少しずつ出来上がっていく様子を見に来ていたのだそう。

「母が下に住んでいるので、母から「今日ここが出来たよ!」と連絡をもらうと見たくなって、仕事帰りによく寄っていました。壁が解体された時やクロスが貼られた時は印象がガラリと変わるので特にテンションが上がりましたね」

一方O様はリフォーム前のお住まいも含めて、リフォームが終わるまでお家の中を見たことはありませんでした。
「でも、ショールームに2人で行って一緒に物を決めたり、ずっと彼女から細かく説明をされていたので、初めて見た時には感動しました。すごい、本当に図面で見ていた通りになるんだなって」

工事中の行動は対照的ですが、しかしお2人とも今回のリフォームを心の底から楽しみ、新しいお住まいに満足していることがキラキラとした表情や話しぶりから伝わってきます。

実はこのお家は、お母様であるT様のご両親が建てたマンションを、T様が受け継いだもの。
その一室をリフォームし、「将来は結婚を考えている」と話すY様とO様が移り住むという、3代にわたり住み継ぐ住まいのかたちが完成しました。

「これから歳を取った時に上に娘たちがいれば安心感もあります。当初の予定よりもやることが増えたのでリフォームの金額も上がりましたが、それで娘たちが喜んでずっと住んでくれたらそれが一番いいです。」

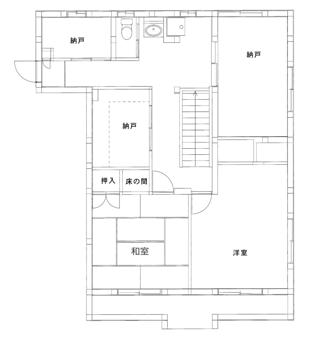
Before
After

以前は和室と洋室が1部屋ずつと納戸が3つあり、キッチンや浴室はありませんでした。
今回は物置として使用する洋室1部屋を除く空間をリフォーム。水回り設備を整え1LDKの間取りに変更しました。

朝日住宅リフォームの
ここがGood!
お客様
担当者

最初のリフォームで「知識があって相談がしやすく融通の利く会社」として朝日住宅リフォームを選んで以降、度々ご利用をいただいているT様。今回のリフォームでも他社は全く検討しなかったといいます。
「私も仕事柄工務店さんに知り合いもいますが、自宅については朝日住宅リフォームさんにお願いするって決めているんです。相談しやすいし、同じところでやる方がもし何かあっても対応してもらえますからね」

担当者からのお礼状
お客様
担当者
リフォーム東京 藤井 保勝

これまで何度もお世話になっているT様からのご依頼です。
間取りのご要望や仕様決めに関しては、T様とY様O様が主体となり進められたリフォームでしたので、私はそれを形にするという作業でした。ただ、キッチンや浴室を新設する必要があり、それに伴い天井解体や外壁貫通穴あけ、床のかさ上げなど必要な工事が多く大変な面も多々ありました。しかし、1階にいるT様にいつでもご相談させていただける環境や職人方に助けられ進めることができました。
完成したお住まいはY様の手作り家具が映えるとても素敵な仕上がりとなりました。
T様、Y様、O様ならびに関係者の皆さまに心より感謝いたします。

リフォームのご相談や
お見積りを承ります

お電話やWeb、ご来社などお客様のご相談しやすいスタイルで、
お気軽にお問い合わせください。

東京 / 神奈川 / 埼玉

0120-459-067 0120-459-067

大阪

0120-046-946 0120-046-946

神戸

0120-444-894 0120-444-894

無料カタログプレゼント!

お見積り依頼

ご相談・お問い合わせ

納戸をリフォームで二世帯化 空間をつなげて光や視界が抜ける家