愛と幸せの暮らしに

白ナチュラル×ハンドメイド小物 =「やさしさに包まれた空間」に
白ナチュラル×ハンドメイド小物 =「やさしさに包まれた空間」に
東京都板橋区O様の事例紹介

450万円

ご家族構成
ご本人
リフォーム箇所
リビング
キッチン
風呂
洗面
トイレ
洋室
玄関・ドア
収納・押入
「キッカケ」 ノ ハナシ

 朝日住宅リフォームの特長のひとつでもある中古を買ってリフォーム。この「中古を買ってリフォーム」をされたのがO様です。

住み慣れたエリアでマンションを探したいと思っていたO様は、まずグループ会社である朝日住宅にて物件探し。そして物件を購入る前に、リフォームプランナーに実際に物件を見てもらいリフォームの相談をすることとなりました。

そこで物件の内覧に同行したのが、今回のリフォーム担当者でした。

「実は他者と相見積りも取ったのですが、対応が全然違いましたね。担当の方の丁寧で真摯な姿勢を目の当たりにして、こちらも安心してお任せできると思い朝日住宅リフォームに決めました。」

「マドリ」 ノ ハナシ

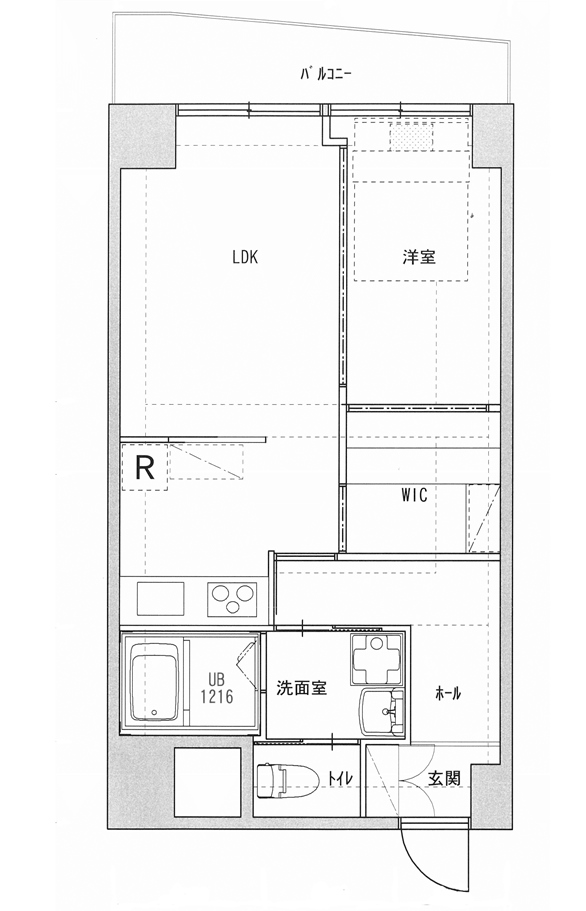
 今回は大胆に間取りをチェンジしたO様。以前の間取りでは、「家にはいってすぐリビングがあるということと、洗面室などの水回りに玄関を通らなければ行けないというのが嫌だった」というO様。

そこで担当者はリビングの位置を動かし、廊下を作ることを提案しました。廊下を作ることで玄関とリビングが接することを防ぎ、水回りへの動線も作ることができました。

「多少部屋の面積を狭めることにはなりましたが、廊下を作って正解でした。また、2LDKだった間取りを1LDK+WICに変更しました。WICに家中のものを収納できてしまうのでとても重宝しています。おかげで部屋もすっきりしましたね。」

「テイアン」 ノ ハナシ

提案に関しては、O様は担当者の「自分の意見を押し付けることはせず、こちらの意思を尊重しながらプロ視点からリードしてくれる姿勢」にとても好感を持たれたのだそう。

「こちらは素人なので思いつくままにあれこれ要望を言うんですけれど、担当の方は私の気づかない細かなところにまで気を配ってくれて、その場合この部分にこう影響するとアドバイスしてくれたのが良かったですね」

その具体例が洗面室とバスルームの間の扉。O様は扉をリフォーム前と変わらない位置に付けようと考えたそうですが、担当者からその位置に扉があると洗面室にはものを置けるスペースがなくなってしまうため、扉の位置は反対にして壁と壁が接するコーナーを作った方がいい。というアドバイスがあったという。

「どうしても無理なことに関してもきちんと納得のいくような説明をしてくれたので、今回はとにかく“納得してリフォームできた”という感が強いです。これが満足度が高い要因だと思います。」

セカイ 二 ヒトツ

O様のお住まいはPOPでキュート。
お部屋の小物は「可愛い、あれもこれも可愛い」と連呼してしまうほどポップで可愛らしいものばかり。
小物を引き立てるため、ベースとなる内装は「白系でナチュラル」にしたのだそう。

また、新しく設けた廊下の壁には飾り棚を作りました。これはO様のお母様のリクエストで、趣味でいろいろなものをお作りになるというO様のお母様の作品展示スペースとなっています。
飾り棚にお手製の樹脂粘土で作られたお花が飾られているのを見てお母様も大満足のご様子だったそう。

O様ご自身も手作りがお好きで、リビングのサイドボードをペイントしたり、お部屋の小物もO様がハンドメイドされたものが多く飾られています。「ハンドメイドは、一品だけ、他にないひとつだけのものだから好き」と話すO様。このお部屋も世界に一つ、O様だけのとっておきの空間になったようです。

Before
After
朝日住宅リフォームの
ここがGood!
お客様
担当者

何より担当の方の真摯な姿勢ですね。彼女はこちらの話を一生懸命話を聞いてくださり、私が「こうしたい」と思うものに沿って提案をしてくださいました。実際に工事が始まってからも、本当に丁寧に、いろいろな対応をしてくれて、細かいところまで気配りをしていただきました。 
物件の仲介担当の方もいい方でしたし、素敵な会社だなぁと思います。
また、朝日住宅ということで安心できるという思いもとても大きかったですね。

担当者からのお礼状
お客様
担当者
リフォーム東京

O様とは、物件をご検討の段階からお話ができたので、どんな暮らしをされたいか、その為にどのようにしたら良いか、をじっくり時間をかけてお打合せが出来ました。プラン変更を重ね、メリット・デメリットを整理できたこともとても良かったと思います。
ニッチも楽しく飾っていただき、お部屋がO様のによってどんどん素敵になっているのがうれしいです。本当にありがとうございました。

リフォームのご相談や
お見積りを承ります

お電話やWeb、ご来社などお客様のご相談しやすいスタイルで、
お気軽にお問い合わせください。

東京 / 神奈川 / 埼玉

0120-459-067 0120-459-067

大阪

0120-046-946 0120-046-946

神戸

0120-444-894 0120-444-894

無料カタログプレゼント!

お見積り依頼

ご相談・お問い合わせ

白ナチュラル×ハンドメイド小物 =「やさしさに包まれた空間」に