Case03

手作り感にこだわった、シックな大人の住まい

ご要望は手作り感。「素朴なもの。木を削り、板を張り、レンガや石を積み、鉄を溶接し、セメントを流して造形し・・・」と具体的にイメージされていました。

テレビ台兼本棚、作業カウンター、キッチンカウンターなど全て造作しています。入隅、出隅にはエコカラットを張り、上質感を出しています。

リビングと洋室を仕切っていた建具を取り払い、開放感たっぷりの贅沢なワンルームです。

キッチンには幅広のカウンターを造作、壁にはエコカラットを張りました。プラスチックをなるべく使いたくないとのご要望でしたので、キッチンの水栓をプラスチックから金属に変えています。

分かれていた洗面スペースとトイレは仕切りを取り払い一体の空間としました。

トイレは便器の存在を控えめに、とタンクレスのものにしました。また、プラスチックはなるべく使いたくないことから、メタル調のトイレリモコン、照明スイッチおよびコンセントプレートは新金属製にしています。

素材を生かした手作り感

中古マンションをご購入、それに伴うリノベーションです。
中東、アフリカの途上国、欧州と世界を観てこられたお客様、ご要望は現地で感じた素敵なもの「その土地の職人が手作りした感のある、割と素朴なもの」でした。部材などを決める際も揺るぎないこだわりをお持ちで、素材感と世界観にこだわったシックな大人のお住まいが完成しました。

Room Plan プラン

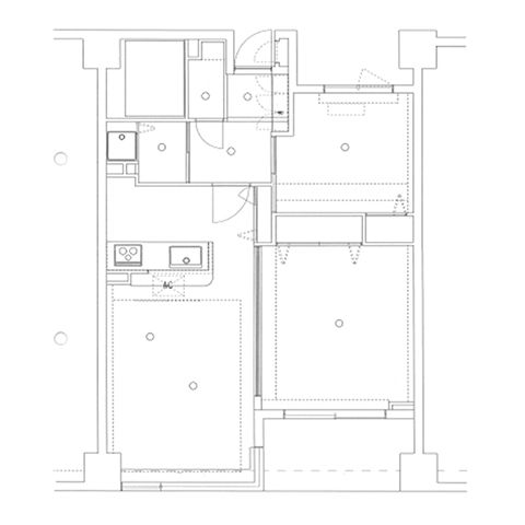
Before

2LDKだった間取り

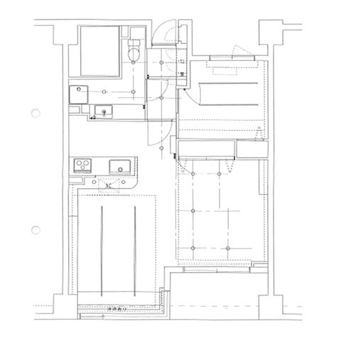
After

リビングと洋室の間は建具を取り払って一空間に。開放感あるワンルームです。また、洗面スペースとトイレも一体の空間としました。

Outline お住まいデータ

費用

637万円

間取り

2LDK→ワンルーム

築年数

15年

工事面積

60.98㎡

工期

22日間

所在地

東京都

Pick Up 想いを形に。こだわりのポイント

こだわった素材感

素材感にこだわりました。木を使った造作カウンターや本棚、コンクリート現しの天井、プラスチックを使わないトイレリモコンやコンセントプレートなど。すべての部材にこだわっています。

Before After ビフォーアフター

求めたものは手作り感

Before
After

間仕切りを取り、ワンルームに。本棚、作業カウンターを造作しています。

素材にこだわったキッチン

Before
After

幅広のキッチンカウンターを造作。壁にはエコカラットを張っています。

建具がなくなり広さを感じる空間に

Before
After

機能より質感とイメージを優先した洗面室

Before
After

他の事例を見る

Case 01

パリのアパルトマンを感じる暮らし

Case 02

長く安心して暮らせる家を

Case 04

空間の取り方に遊び心を詰め込んだギャラリーハウス

Lino Lifeは東京・大阪・神戸を中心にリフォームを行う
朝日住宅リフォームのリノベーションブランドです。

フルオーダーリノベーションでひとりひとりに合った理想の住まいを実現。
常に寄り添う姿勢でお客様のずっと輝く暮らしをご提案します。